根据中国工程建设标准化协会《关于印发<2021年第一批工程建设协会标准制订、修订计划>的通知》(建标协字[2021]11号)的要求,德房家(中国)管道系统有限公司、华东建筑设计研究院有限公司会同有关单位完成了协会标准《带抗拔装置型卡压式不锈钢管件(送审稿)》(审查会议上已修改名称为《齿圈卡压式薄壁不锈钢管件》)(以下简称《标准》)的编制工作。


2021年12月28日,《标准》审查会在德房家上海展厅会议室以现场和视频会议相结合形式召开,参加会议的有主管部门中国工程建设标准化协会、有关单位的专家和编制组成员。

中国工程建设标准化协会技术标准部副主任汤亚军代表中国工程建设标准化协会对《带抗拔装置型卡压式不锈钢管件(送审稿)》的编制工作给与了充分肯定,向编制组成员的辛勤工作表示感谢,同时对标准审查提出了明确要求。
会议由中国工程建设标准化协会建筑给水排水专业委员会主持,成立了以程宏伟教授级高工为组长、徐凤教授级高工为副组长的审查专家组。


会议上,审查专家组在听取了编制组对标准编制情况介绍和有关技术内容说明,并对标准内容进行逐条讨论、审查后,最终一致认定《标准》内容科学合理、可操作性强,予以通过。


审查专家组认为标准中所规范的齿圈卡压式管件拥有提高管道系统连接可靠性的独特构造,标准对其相关技术、性能等多方面的数据、规范,不仅为设计及安装提供了科学依据,还对国内不锈钢卡压技术产品的设计和检测都有着积极的指导意义。并且,《标准》内容与现行相关标准相协调,填补国内空白,达到了国际水平。


齿圈卡压式管件的优势性能
该标准名称中“带抗拔装置型卡压式不锈钢管件”所指的是带有齿环结构的齿圈卡压式管件。专家组在审查的主要修改意见中,也明确将标准名称按照管件结构更改为“齿圈卡压式薄壁不锈钢管件”。
作为卡压连接技术的全球市场领导者,德房家自1995年发布世界第一套铜卡压连接系统后,就一直以创新高效的卡压技术领先行业。2017年8月1日,德房家发布齿圈卡压不锈钢管路系统全新产品--Cleverpress,正式将齿圈卡压技术带到中国市场。


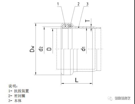
齿圈卡压式薄壁不锈钢管件采用了独特的齿环结构,其包含了抗拔圈和密封圈。《标准》中也明确了其系统承压能力为25公斤,高于目前国家不锈钢卡压标准的16公斤。
抗拔圈可增加卡压过程中的受力区域,使连接处变形更小,流速更快;密封圈则具有耐腐蚀、抗老化的特性,可以保证管道密封性长期可靠。

行业标准制定
齿圈卡压式管件自2017年引进以来,已在国内诸多项目中得到了良好的应用,其品质也收获了用户和行业的广泛认可。为了更好地推广这项技术,也为了让更多国内用户能够使用到优质的管道产品,在中国工程建设标准化协会的指导和提出下,德房家和国内权威设计研究机构-华东建筑设计研究院有限公司、同济大学建筑设计研究院(集团)有限公司,以及相关企业进行了此项技术行业标准的编制工作。
从产品的分类和标记、结构型式与尺寸,到产品要求、试验方式、检验规则,再到包装、运输与贮存,《标准》从各个方面对齿圈卡压式薄壁不锈钢管件进行了详细的规定和说明,尤其标准中提出的的防漏卡技术与管件相应局部阻力系数表填补了国内空白,达到国际水平。
防漏卡技术是一项能够快速检验管件是否漏卡、卡紧的前沿技术。目前我国所执行的行业标准都未曾提及,而此次《标准》则创新地纳入了该项技术,并进行了详细说明。当钢管仅是插入管件并未进行卡压时,在0.10-0.65MPa的较低压力状态下,采用防漏卡技术后,该连接部位能够明显地看到泄漏,从而保证了任何因疏忽而未卡压的连接都能无所遁形,保障整个管路系统的安全。

防漏卡性能示意图
同时,标准还明确测算出了齿圈卡压式薄壁不锈钢管件各个类型、各个管径的局部阻力系数数据。







《标准》送审稿目前已通过审查,在依据专家组的修改意见对相应细节进行补充完善后,即可形成报批稿最终上报,相信很快就能正式颁布实施。未来,德房家也将结合中国国情,将更多具有德国及欧洲先进理念的标准和产品引入国内市场,为促进中国建筑给排水技术高品质发展,构筑安全用水环境不懈努力!






